“ศุภณัฐ” เปิดห้องสันทนาการ สตง. ห้องเดียวแพง 100 ล้าน หรูคล้ายโรงแรม

“ศุภณัฐ” เปิดแบบแปลนห้องสันทนาการ สตง. ห้องเดียวใช้งบทะลุ 100 ล้าน ชี้ฟังก์ชันหรูคล้ายโรงแรม
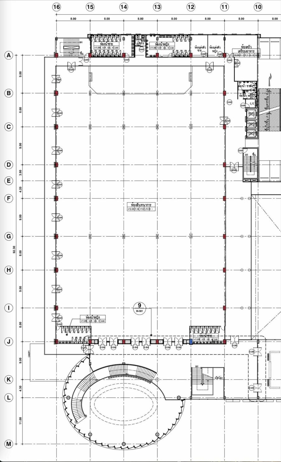
นายศุภณัฐ มีนชัยนันท์ สมาชิกสภาผู้แทนราษฎร กรุงเทพมหานคร พรรคประชาชน โพสต์ภาพแบบแปลนห้องสันทนาการของสำนักงานการตรวจเงินแผ่นดิน (สตง.) พร้อมตั้งข้อสังเกตเกี่ยวกับความเหมาะสมของงบประมาณที่ใช้ในการก่อสร้าง
นายศุภณัฐระบุว่า ห้องสันทนาการดังกล่าวมีขนาดถึง 3,000 ตารางเมตร ใช้งบประมาณกว่า 100 ล้านบาท โดยในแบบแปลนปรากฏรายละเอียดว่าภายในห้องมีเวทีขนาดใหญ่ 150 ตารางเมตร พร้อมห้องแต่งตัวแยกชายหญิง, ห้องครัวสำหรับเตรียมอาหาร, ห้องน้ำจำนวน 45 ห้อง, ลิฟต์ 3 ตัว และบันได 4 มุม
“โถงด้านหน้าของห้องเป็นพื้นที่กลม ๆ มีบันไดโค้ง คล้ายกับโถงโรงแรมหรูที่บ่าวสาวนิยมใช้ถ่ายภาพในงานแต่งงาน” นายศุภณัฐระบุ พร้อมตั้งข้อสังเกตว่า พื้นที่นี้อาจใช้จัดงานภายใน อาทิ ปาร์ตี้โต๊ะจีน งานเลี้ยงเกษียณ หรืองานฉลองปีใหม่ โดยไม่ต้องเสียค่าใช้จ่ายเช่าสถานที่นอกหน่วยงาน ใช้ทั้งสถานที่ของรัฐ ไฟของรัฐ และงบประมาณจากภาษีประชาชน

ย้อนลำดับปมงบก่อสร้างอาคาร สตง. ใช้งบรวม 2 พันล้าน
โครงการก่อสร้างอาคารสำนักงานใหม่ของสำนักงานการตรวจเงินแผ่นดิน (สตง.) ได้รับอนุมัติวงเงินรวมจากคณะรัฐมนตรีจำนวน 2,560 ล้านบาท แบ่งเป็นงบค่าก่อสร้างอาคารและสิ่งก่อสร้างประกอบ 2,136 ล้านบาท และงบค่าควบคุมงานก่อสร้างอีก 76.8 ล้านบาท ซึ่งภายหลังมีการปรับเพิ่มเป็น 84.37 ล้านบาท
สำหรับการดำเนินงานก่อสร้างนั้นเป็นความรับผิดชอบของ กิจการร่วมค้าไอทีดี-ซีอาร์อีซี ซึ่งประกอบด้วย บริษัท อิตาเลียนไทย ดีเวล๊อปเมนต์ จำกัด (มหาชน) และ บริษัท ไชน่า เรลเวย์ นัมเบอร์ 10 (ประเทศไทย) จำกัด โดยได้รับการคัดเลือกเป็นผู้ชนะการประมูล ด้วยวงเงินสัญญาก่อสร้าง 2,136 ล้านบาท ซึ่งต่ำกว่าราคากลางที่กำหนดไว้ที่ 2,522.15 ล้านบาท อย่างไรก็ตาม เมื่อวันที่ 30 มีนาคม 2568 มีรายงานว่า มีการเบิกจ่ายงบประมาณไปแล้วรวม 966.80 ล้านบาท หรือคิดเป็น 45.26% ของวงเงินค่าก่อสร้างทั้งหมด

หลังตึกถล่ม สังคมเริ่มให้ความสนใจกับโครงการนี้มากขึ้น มีเอกสาร บัญชีวัสดุและราคาจัดซื้อภายในอาคาร หลุดเผยแพร่บนโลกออนไลน์ โดยระบุว่า ราคาเก้าอี้ห้องประชุม อยู่ที่ตัวละ 97,900 บาท เก้าอี้ไม้บีช หุ้มหนังแท้นำเข้าจากอิตาลี จะถูกนำไปใช้ในห้องประชุมพิธีการชั้น 4 และห้องประชุมบอร์ดชั้น 11 จำนวน 1 ตัว (ต่อห้อง) ตั้งราคาไว้ที่ต่อหน่วย 97,900 บาท
นอกจากนั้นยังมีเก้าอี้อีกชุด ระบุว่าจะถูกนำไปใช้ในห้องประชุมพิธีการชั้น 4 และห้องประชุมบอร์ดชั้น 11 โดยเป็นเก้าอี้ไม้ประดู่หุ้มหนังแท้ นำเข้าจากอิตาลี จำนวน 28 ตัว(ต่อห้อง) ราคาต่อหน่วย 48,400 บาท
รวมถึงเอกสารอ้างเป็นตรวจราคาครุภัณฑ์ อาทิ พรมทอมือ Nylon ผืนละ 165,000 บาท โต๊ะกลมทานอาหารของผู้ว่าการ สตง.และประธาน คตง. ตัวละ 90,000 บาท ตามเอกสารจัดซื้อ 5 ตัว อีกทั้งพรมผืนละ 110,000 บาท
ปัจจุบันยังไม่มีคำชี้แจงอย่างเป็นทางการจาก สตง. ถึงรายละเอียดของการจัดทำห้องสันทนาการหรือคำชี้แจงเกี่ยวกับรายการจัดซื้อที่ถูกวิพากษ์วิจารณ์ อย่างไรก็ตาม กระแสสังคมยังคงเรียกร้องให้มีการตรวจสอบความโปร่งใส และความคุ้มค่าของงบประมาณที่ใช้ในโครงการดังกล่าวอย่างจริงจัง

อ่านข่าวที่เกี่ยวข้อง
- ขนหัวลุก กู้ภัยเจอดีที่ตึก สตง. ได้ยินเสียง “พี่คะ พาหนูกลับบ้านหน่อย หนูอยากกลับบ้าน
- ด่วน พบแสงไฟกระพริบ ใต้ซากตึก สตง. ลึก 3 ม. ยังมีหวังเจอคนรอดชีวิ
- ด่วน! มูลนิธิเจอสัญญาณไฟ ใต้ซากตึก สตง. ถล่ม หวังปาฏิหาริย์
ติดตาม The Thaiger บน Google News:





