“ชัชชาติ” ถึงกับร้องโอ้โห ห้องประชุม ข้างตึก สตง. ถามเอาไว้ทำอะไร?

ชัชชาติ ถึงกับร้องโอ้โห ห้องประชุม ข้างตึก สตง. ถามเอาไว้ทำอะไร ขณะที่ สส.แบงค์ เคยเปิดผัง ขนาด 3,000ตรม. ใช้เงินภาษี 100 ล้าน
นาย ชัชชาติ สิทธิพันธุ์ ผู้ว่าราชการจังหวัดกรุงเทพ ได้ไลฟ์เฟซบุ๊กลงพื้นที่ตรวจสอบความคืบหน้าเหตุตึก สตง. ถล่มเป็นเหตุให้มีผู้เสียชีวิตล่าสุด 44 ศพนั้น
โดยนายชัชชาติ ได้เดินไปยังบริเวณจุดก่อสร้างห้องจัดเลี้ยง ซึ่งอยู่ข้างๆอาคารที่ถล่ม ซึ่งผู้ว่ากรุงเทพกล่าวว่า “โห นี่ใหญ่ ห้องประชุม ใหญ่โตมาก เอาไว้ทำอะไรเนี่ย? โอ้โห มันคือห้องประชุม ห้องจัดเลี้ยง หรือห้องอะไร ใหญ่โตดีนะ อันนี้แข็งแรงไม่พังเนอะ จริงๆให้มานอนในนี้ก็ดีเหมือนกัน

เขาเอาไว้ทำอะไร ไว้ประชุมมั้ง ไม่รู้ว่าทำอะไรเหมือนกัน แต่เป็นตึกเตี้ย มีสแตน 50 เมตรนะเนี่ย จัดงานแต่งงานได้แถวนี้”
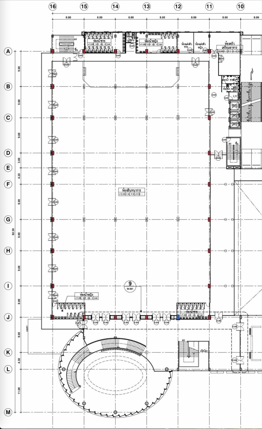
ขณะที่ สส.แบงค์ ศุภณัฐ มีนชัยนันท์ พรรคประชาชน ได้เคยโพสต์ถึงห้องโถงนี้ว่า “ห้องสันทนาการ #ตึกสตง ขนาด 3,000ตรม. ห้องเดียว ใช้เงินภาษีกว่า 100ล้านบาท
มีเวทีขนาด 150ตรม. พร้อม ห้องแต่งตัวชาย/หญิง, ห้องครัวเตรียมอาหาร, ห้องน้ำ 45 ห้อง, ลิฟท์ 3 ตัว, บันได 4 มุม
คาดว่า ไว้จัดปาร์ตี้โต๊ะจีน งานเกษียณ/ฉลองปีใหม่ ไม่ต้องเสียเงินไปปิดร้าน ใช้ที่หลวง ไฟหลวง เงินหลวงฉ่ำๆ
กลมๆด้านหน้า คือโถงพร้อมบันไดโค้ง- ฟีลประมาณ โถงโรงแรม ที่มีบันไดวนสวยๆ ไว้ให้บ่าวสาวถ่ายรูปจูงมือเดินลงบันไดนะครับ”

อ่านข่าวที่เกี่ยวข้อง
- เพจดังแฉต่อ ตึก สตง. มีโรงหนังส่วนตัว 200 ที่นั่ง ถามงบประมาณเพื่อใคร?
- เพจดัง จำลองภาพห้องน้ำ ตึก สตง. ถามนี่ที่ทำงานหรือคอนโดหรูกลางเมือง?
- อดีตผู้ว่า สตง. ขอโทษ เลือกฮวงจุ้ยไม่ดี สาเหตุทำตึกถล่ม
ติดตาม The Thaiger บน Google News:





